כניסת לקוחות
דף הבית
צור קשר
0
סה"כ
0 ₪
צפה בסל קניות
לקופה
052-4747-066
חיפוש מוצר או מק"ט
לחץ לחיפוש
0
פתרונות לבניה ירוקה (3840 x 2160 px) (1).png
הצג תפריט ניווט
הצג תפריט ניווט
052-4747-066
הזמנות שלי
שינוי פרטי חשבון
התנתק
דף הבית
גבס קינג
אודות גבס קינג
שאלות ותשובות
מוצרים חדשים
עיצוב ללא גבולות
אדריכלים ויזמים
פרופיל תאורה נסתרת: SD-5
דף הבית
נסתרת וישירה
פרופיל תאורה נסתרת: SD-5
בחר אפשרויות
אורך היחידה
אורך היחידה
2 מטר אורך
3 מטר אורך
ממד A
ממד B
ממד C
סוג לוח
סוג לוח
לבן
ירוק
ורוד
עובי הגבס
עובי הגבס
12.7
9.4
6.4
לקבלת הצעת מחיר
מידע נוסף
פרופיל תאורה נסתרת מסוג SD-5
פרופיל דגם SD-5 הינו פרופיל לתאורה אדריכלית נסתרת שקועה בגבס.
את הפרופיל מתקינים כאשר תיבת התאורה שקועה בתוך הקיר/תיקרת גבס.
בסיום ההתקנה מתקבל פס תאורה לניארית שקועה בגבס עם תאורת LED נסתרת.
מיועד עבור תקרות,עמודים,סינרים יצירת נישות משולבות תאורה נסתרת, ועוד.
ניתן לקבוע מידות מראש ולהתאים את הפרופיל לצורכי העבודה.
לחצו על התמונה לצפיה ב 3D
אור שמתכתב עם האדריכלות
ביום
בלילה
ובין לבין
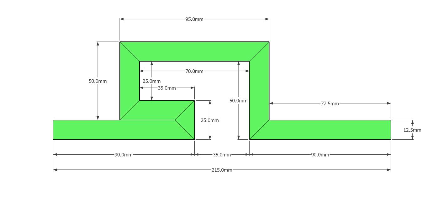
דוגמה למפרט של פרופיל תאורה נסתרת
ניתן לשנות את מידות פרופיל התאורה לפי הצורך.
בכדי לתכנן את קרניז הגבס יש להתחשב במספר נתונים
1. יש לסמן את המידות במ"מ
2.מידות הפריסה לא יעלו על 1200מ"מ
3.עובי לוח גבס סטנדרטי 12.7 מ"מ
יש לציין את מידות המפתח התאורה
הדמיה להמחשה בלבד, פרופילי התאורה לא כוללים פסי לד, או חלקי תאורה
להורדת המפרט בקובץ SKP
להורדת המפרט בקובץ DWG
מוצרים קשורים
פרופיל סכין לתאורה: SD-3
פרופילי גבס מעוצב מדגם SD-7
...
פרופילי תאורה צדדית: SD-6
פרופילי גבס לתאורת צד: SD-9
...
Go Top